In-house Mixed-Use Residential Project – Dental Clinic Interior / Architectural Designer in Plus Architects
Image by Ruili Wang unless otherwise noted
Project: In-house Mixed-Use Residential Project – Dental Clinic Interior
Dental Office Area: 2,740 SQ.FT.
Project Involvement: Lead interior designer for the dental clinic (90% responsibility). Developed overall floor plans, power layouts, RCP, finish plans, and casework design including a specific treatment room detail. Produced six high-quality renderings and a short interior animation video. Prepared alternative architectural options for the first floor to enhance functionality and spatial experience. Produced technical documentation in AutoCAD and Rhino, coordinated materials selection, and refined color and visual adjustments in post-production.
This dental clinic interior is designed to create a functional, hygienic, and welcoming environment for patients, while integrating smoothly with the building’s residential character. Warmth and comfort were key considerations, achieved through material selection, lighting, and spatial layout.
An overall Floor Plan, RCP, and Power Layout is provided for context, along with a short interior animation video that captures the spatial flow and atmosphere. Placing the video here allows viewers to immediately experience the clinic’s welcoming environment.
Rhino, Enscape, Adobe Photoshop, Adobe Premiere
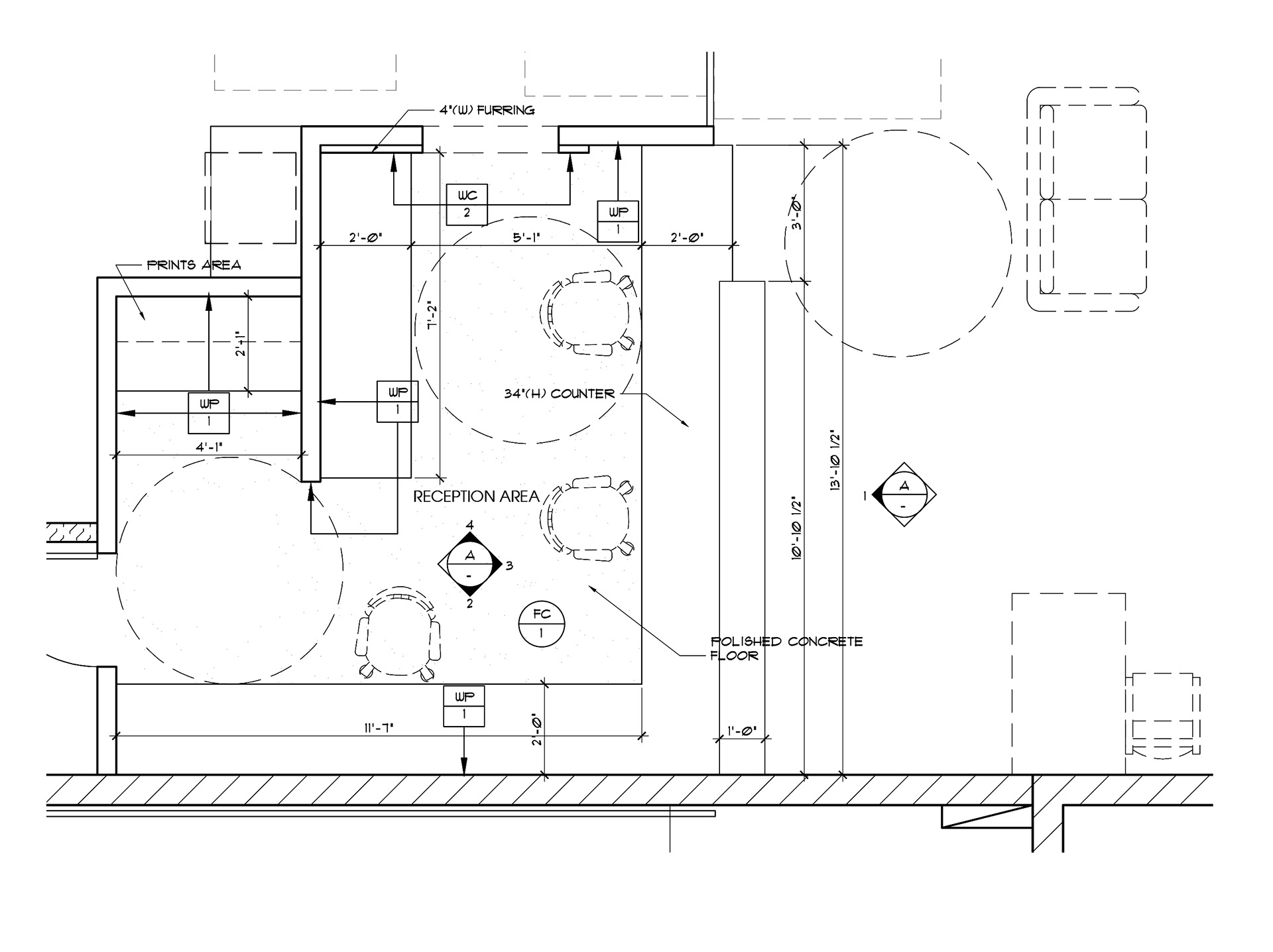
The Floor Plan highlights the clinic’s main functional areas, ensuring efficient circulation and clear spatial organization.
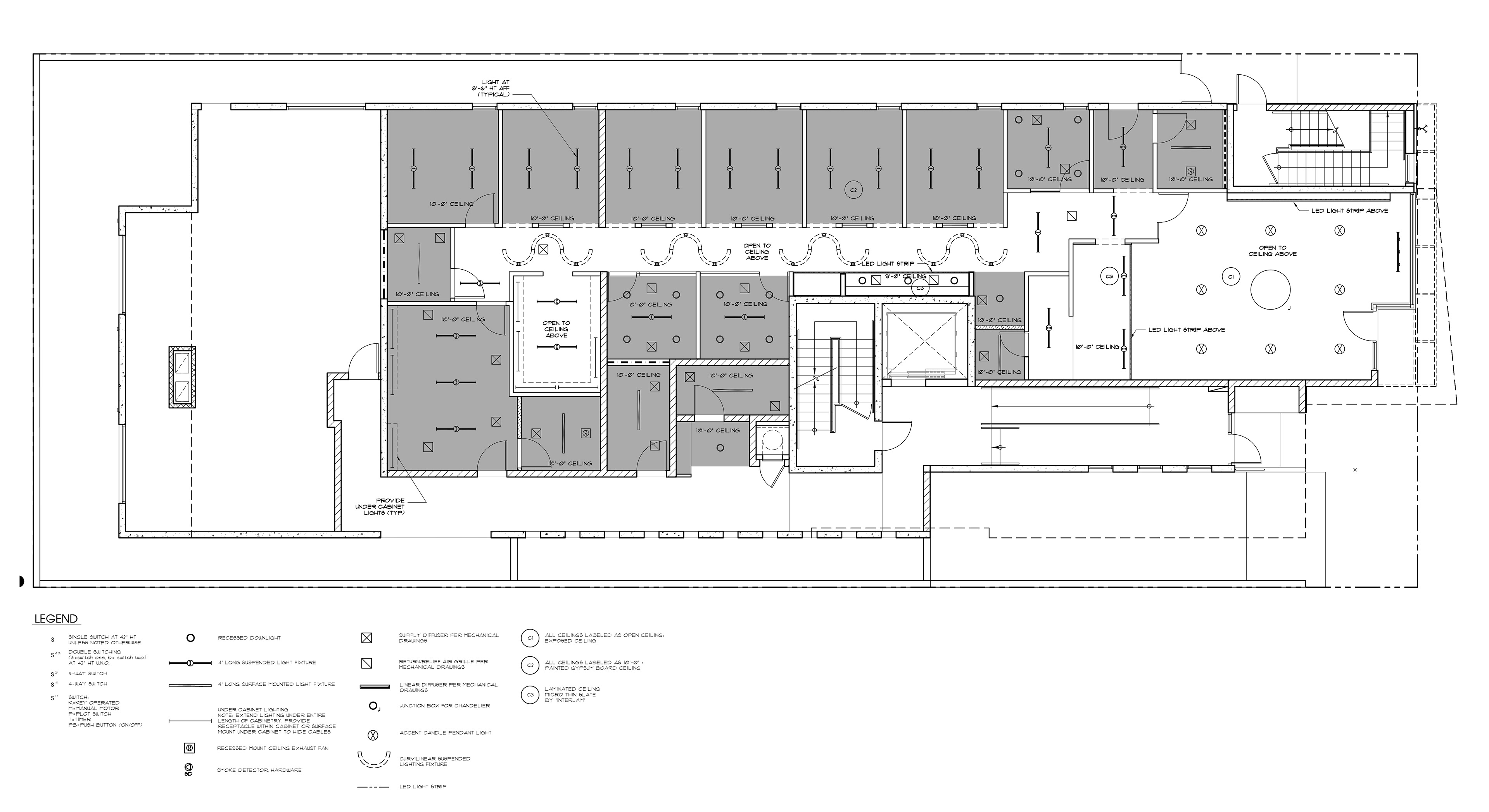
Power Layouts and RCPs are included for technical context, displayed as smaller images alongside the plan. The animation video can also be referenced here to give a dynamic sense of the layout, reinforcing the warm, inviting atmosphere.
Power Layouts and RCPs are included for technical context, displayed as smaller images alongside the plan. The animation video can also be referenced here to give a dynamic sense of the layout, reinforcing the warm, inviting atmosphere.
Floor Plan AutoCAD (Dimension & Level Info blurred)
Power Layout & RCP Plan AutoCAD (Dimension & Level Info blurred)
The casework design focuses on creating custom, functional solutions that enhance both efficiency and a sense of warmth within the clinic.
Selected casework details, including a treatment room condition, illustrate how practical requirements are carefully balanced with patient comfort and material expression. Details are paired with visuals to highlight both technical resolution and spatial experience.
The reception desk introduces a warm and approachable entry experience, where wood finishes and soft furnishings are used to soften the clinical environment and ease patient anxiety.
Curved lighting is introduced in the corridor to soften its linear and narrow condition, creating a more fluid and welcoming transition space.
Offices are arranged along one side of the corridor, featuring custom-designed casework tailored to the client’s needs, while contributing to a cohesive and warm spatial environment.
The treatment room is carefully designed to balance precision and comfort, where custom casework, efficient planning, and warm material expression work together to create a calm and reassuring clinical environment.
The finish plan highlights a palette of durable, hygienic, and warm materials, reinforcing a calm and cohesive environment throughout the clinic.
Finish Plan AutoCAD (Dimension & Level Info blurred)
The project demonstrates a careful balance between clinical efficiency and a warm, welcoming patient experience, achieved through thoughtful planning, custom casework, and material selection.