TOIA Project / Architectural Designer in Plus Architects
Image by Ruili Wang unless otherwise noted
Project: 8-story 66-unit Multifamily Residential Project – TOIA-T1, with 1 level of subterranean Parking Garage​​​​​​​
Building Height: 93'-9"
Zoning Floor Area: 55,079 SQ.FT. 
Project Involvement: Lead architectural designer for the multifamily project. Prepared administrative approval package, contributed to Design Development, and handled plan check corrections. Managed DCP submittal, including preparation of referral forms and vicinity maps. Coordinated communication with multiple stakeholders. Currently working on Construction Documents (CD), including detailed architectural drawings and design refinements.
A contemporary multifamily residential project located in downtown Los Angeles, designed to respond sensitively to a steeply sloping street. The architecture carefully mediates vehicle and pedestrian access, creating a natural transition from street to building entry.
Developed under TOIA-T1 guidelines, the project delivers 66 residential units—including six affordable units—while minimizing impact on the surrounding neighborhood. The design emphasizes thoughtful massing, strategic site planning, and integration with the urban context.
Rhino, D5, Adobe Photoshop
Originally a site of low-rise homes and vacant lots, the project transforms the area into a well-integrated multifamily development. The design carefully responds to the steep street slope, providing clear pedestrian and vehicle access while respecting the surrounding neighborhood.
Rhino, D5, Adobe Photoshop
The building’s massing is shaped by the site slope, creating a balanced street presence and a cohesive neighborhood fit. Careful articulation of the façade emphasizes the slope transition and visual rhythm, while rooftop common spaces provide residents with functional outdoor areas
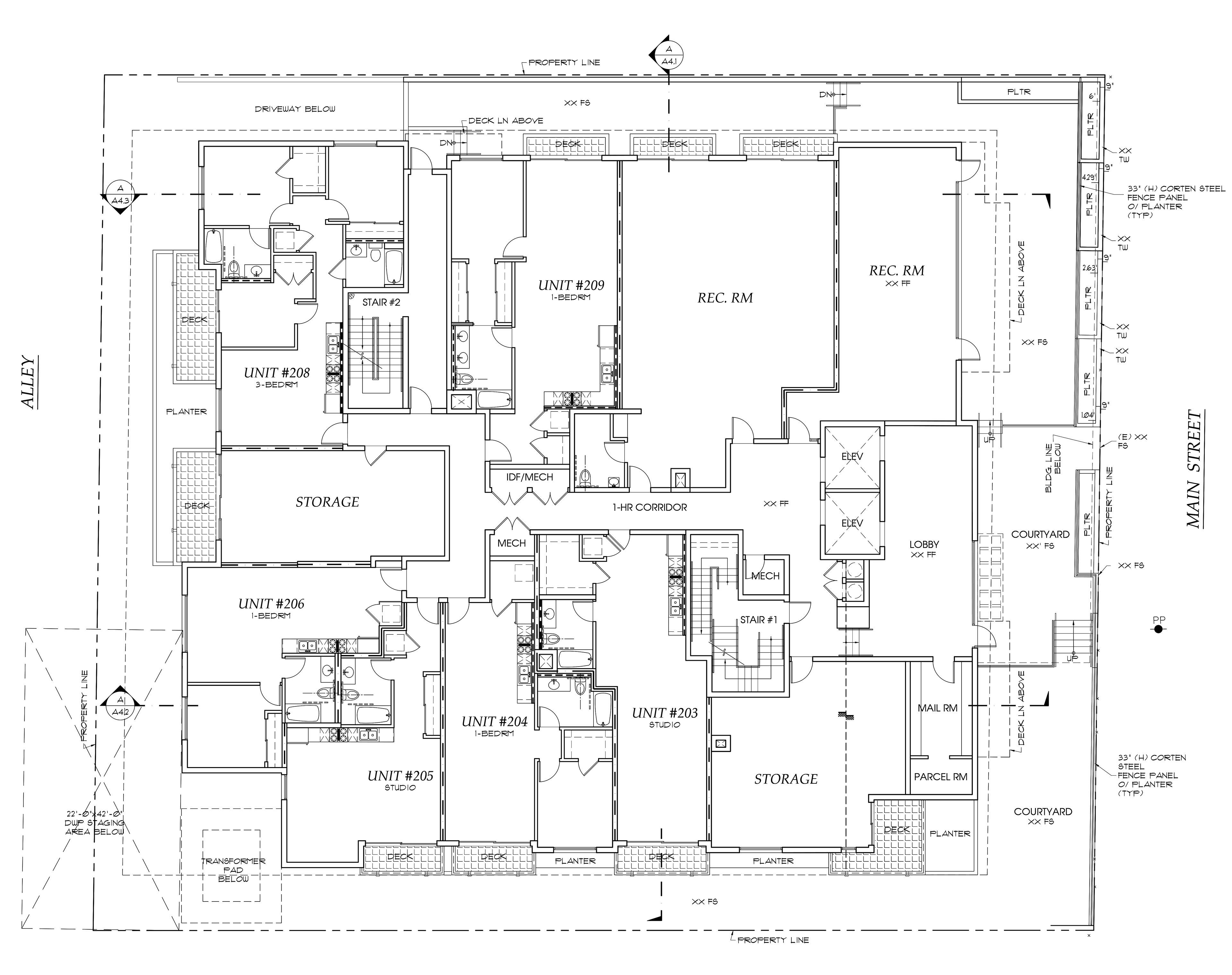
Typical Plans      AutoCAD (Dimension & Level Info blurred)
The ground floor accommodates parking and pedestrian access, with upper floors containing 66 units, including six affordable units. Floor layouts are designed to optimize circulation and natural light, while minimizing impact on neighboring properties in compliance with TOIA-T1 guidelines.
Elevation & Partial Section      AutoCAD (Dimension & Level Info blurred)
The elevation highlights the building’s adaptation to the sloping street through layered façade articulation. A focused section study explores the interplay between natural grade and the subterranean garage, addressing access, level transitions, and geotechnical constraints.
Stair Section      AutoCAD (Dimension & Level Info blurred)
Key details demonstrate thoughtful design at both functional and human scales. Entrance ramps, stairs, and interior layouts ensure accessibility, while enlarged kitchen and bathroom plans show efficiency and livability for residents.”
Rhino, D5, Adobe Photoshop
Overall, the project delivers a sensitive integration of density and context, balancing TOIA-T1 compliance with quality of life, site responsiveness, and neighborhood enhancement.
Back to Top