Architectural Designer in Plus Architects
Image by Ruili Wang unless otherwise noted
Project: 7-unit Condominium, Density Bonus, with 1 level of subterranean Parking Garage​​​​​​​
Building Height: 33'-0"
Zoning Floor Area: 7,854 SQ.FT. 
Project Involvement: Supported the PZA correction process and carried drawings through PZA revisions into CD development. Produced Rhino models and selected materials, with rendering completed collaboratively. Refined color and visual adjustments in post-production. Prepared elevation drawings for ARB submission and completed technical documentation in AutoCAD.
A contemporary multifamily residential project located in Santa Monica, designed to integrate sensitively into the coastal neighborhood scale. The architecture emphasizes clean lines, warm materials, and a balanced massing strategy shaped by site constraints and view considerations.
Rhino, D5, Adobe Photoshop
This two-story, seven-unit condominium emphasizes a thoughtful balance between increased housing and the surrounding coastal neighborhood. Carefully shaped massing and setbacks help preserve nearby views while maintaining a scale and rhythm consistent with the street.
NightView
NightView
Courtyard
Courtyard
Sidewalk
Sidewalk
Rhino, D5, Adobe Photoshop
Evening lighting studies highlight the project’s neighborhood-oriented character, emphasizing warmth, visibility, and safety while maintaining a quiet residential atmosphere.
Adobe Photoshop
Photo montage illustrating how the proposed development sits within the existing neighborhood fabric, maintaining view corridors and respecting scale transitions on both sides.
The design responds to multiple layers of coastal urban conditions, including topography, neighborhood scale, and view corridors. Through a combination of stepped forms and horizontal articulation, the building maintains a soft edge toward neighboring properties while optimizing livability and spatial efficiency.
Site Plan      AutoCAD (Dimension & Level Info blurred)
The site plan organizes vehicular access, pedestrian circulation, open space, and the layout of the seven residential units. Retaining walls up to 6 feet high accommodate site grading requirements.
TYP. Floor Plan      AutoCAD (Dimension & Level Info blurred)
The project contains six units on the first floor and one on the second floor, including townhomes and flat units. Private open spaces and decks are integrated into each unit to support indoor–outdoor living.
      Elevation      AutoCAD (Dimension & Level Info blurred)
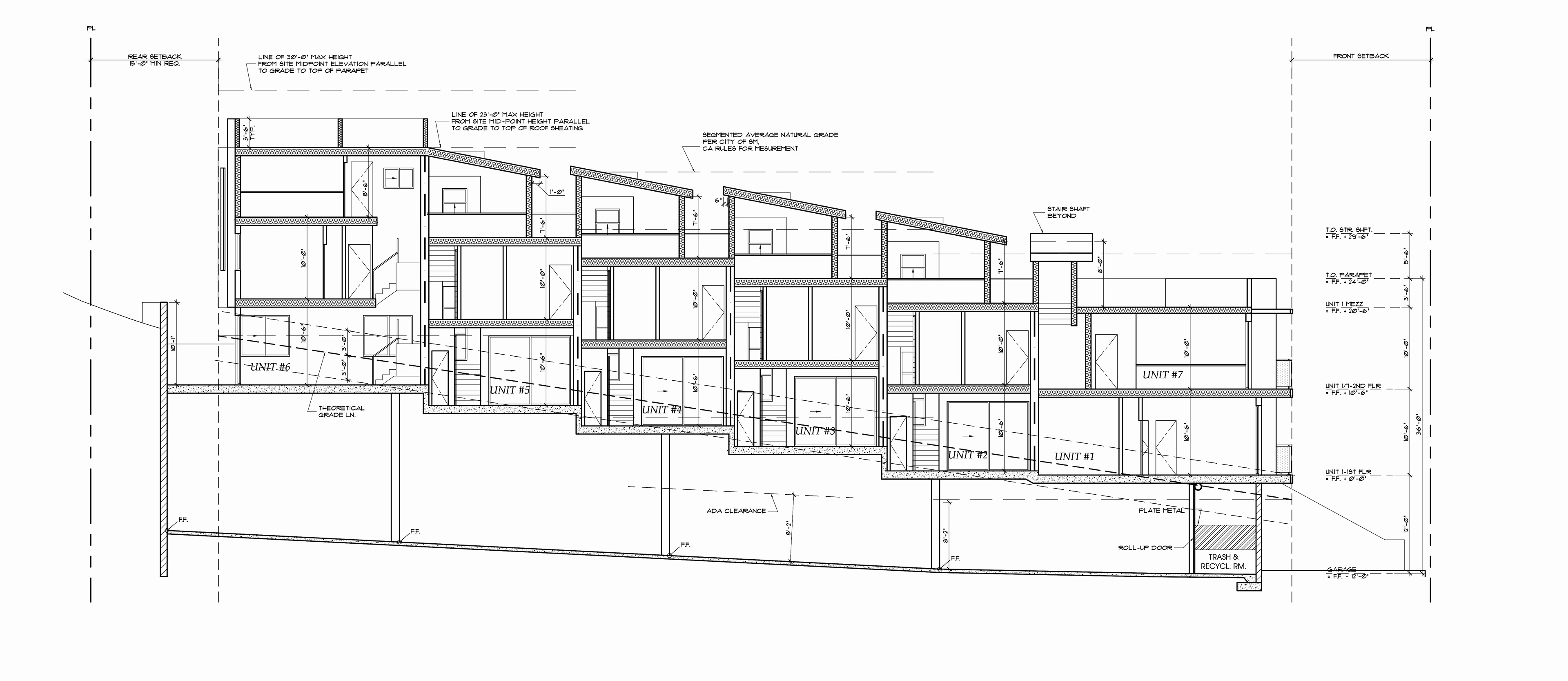
Section​​​​​​​      AutoCAD (Dimension & Level Info blurred)
Elevations and sections express the building’s scale, material articulation, and stepped form resulting from zoning, view preservation strategies, and Density Bonus incentives.
This multifamily development is situated on an urban infill site in Santa Monica. The project replaces an older single-family structure with a contemporary residential building designed to increase housing opportunities while preserving the character of the neighborhood. The design incorporates a thoughtful massing strategy, a mix of unit types, generous private and shared outdoor spaces, and a below-grade parking level.
Throughout the design process, careful consideration was given to maintaining view corridors, responding to topography, and working within the City’s coastal design framework.
Before
After
The completed design vision delivers a calm, refined residential presence that contributes to the evolving architectural landscape of coastal Santa Monica.
Interior​​​​​​​      Rhino + D5 + AI
Back to Top