Architectural Designer in Plus Architects
Image by Ruili Wang unless otherwise noted
Project: 2-Story Addition to an Existing 2-Story Single Family Residence
Building Height: 22'-6" (flat roof); 29'-3" (sloped roof)
Zoning Floor Area: 3,887 SQ.FT.
Project Involvement: Engaged in the project from the initial addition phase, participating in client meetings and early design coordination. Produced renderings to support design communication and client presentations. Prepared and submitted drawing sets to LADBS, supporting the approval process. Contributed to the reorganization of spatial layouts and the integration of new and existing structures. Produced and coordinated plans, sections, and elevations to maintain design continuity throughout the project.
The project introduces a carefully calibrated addition to an existing hillside residence, extending its spatial capacity while maintaining formal continuity.
The intervention respects original roof profile, allowing new volume to integrate seamlessly into its context.
The intervention respects original roof profile, allowing new volume to integrate seamlessly into its context.
Rhino, D5, Adobe Photoshop
The original structure, while structurally sound, presented limitations in spatial organization and usability.
The project rethinks the interior framework to better support contemporary living patterns.
The project rethinks the interior framework to better support contemporary living patterns.
Site Visit Photo
Situated on a sloped site in Los Angeles, the design negotiates topography, access, and buildable area.
The addition is positioned to optimize both spatial efficiency and environmental responsiveness.
The addition is positioned to optimize both spatial efficiency and environmental responsiveness.
Site Plan Revit (Dimension & Level Info blurred)
The proposed plan reorganizes the interior layout to improve circulation, functional clarity, and spatial hierarchy.
New and existing spaces are woven together to create a more cohesive living environment.
New and existing spaces are woven together to create a more cohesive living environment.
1ST Floor Plan Revit (Dimension & Level Info blurred)
2ND Floor Plan Revit (Dimension & Level Info blurred)
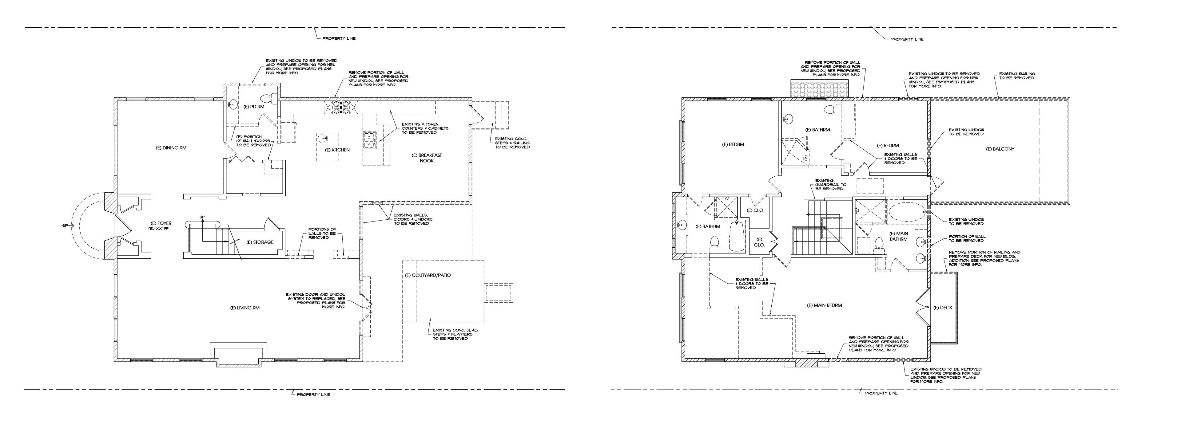
Targeted demolition enables a precise intervention, removing inefficiencies while preserving viable structural elements.
This selective approach minimizes disruption while maximizing spatial transformation.
This selective approach minimizes disruption while maximizing spatial transformation.
Demo Plan Revit (Dimension & Level Info blurred)
The section illustrates the vertical relationship between the addition and the existing structure, adapting to the sloped roof geometry.
Spatial layering enhances natural light penetration and reinforces connections across levels.
Spatial layering enhances natural light penetration and reinforces connections across levels.
Section Revit (Dimension & Level Info blurred)
The exterior expression aligns with the existing architectural language through proportional balance and roof continuity.
Subtle adjustments in massing allow the addition to remain both distinct and cohesive.
Subtle adjustments in massing allow the addition to remain both distinct and cohesive.
Elevation Revit (Dimension & Level Info blurred)
The roof strategy extends existing geometries to maintain visual coherence while accommodating new programmatic needs.
Careful alignment ensures a unified silhouette within the neighborhood context.
Careful alignment ensures a unified silhouette within the neighborhood context.
Roof Plan Revit (Dimension & Level Info blurred)
Architectural details articulate the junction between existing and new construction.
Precision in material transitions reinforces the integrity of the overall design.
Precision in material transitions reinforces the integrity of the overall design.
Wall Section Revit (Dimension & Level Info blurred)
Through measured intervention, the project transforms spatial constraints into opportunities for clarity, light, and continuity.
The addition redefines the house as a more adaptable and cohesive living environment.
The addition redefines the house as a more adaptable and cohesive living environment.
Rhino, D5, Adobe Photoshop